Progetto architettonico Genova

La Casa di P.

Genova, 2021, 95 mq

Progetto architettonico, direzione lavori, arredo su misura e definizione palette colori

OBIETTIVO
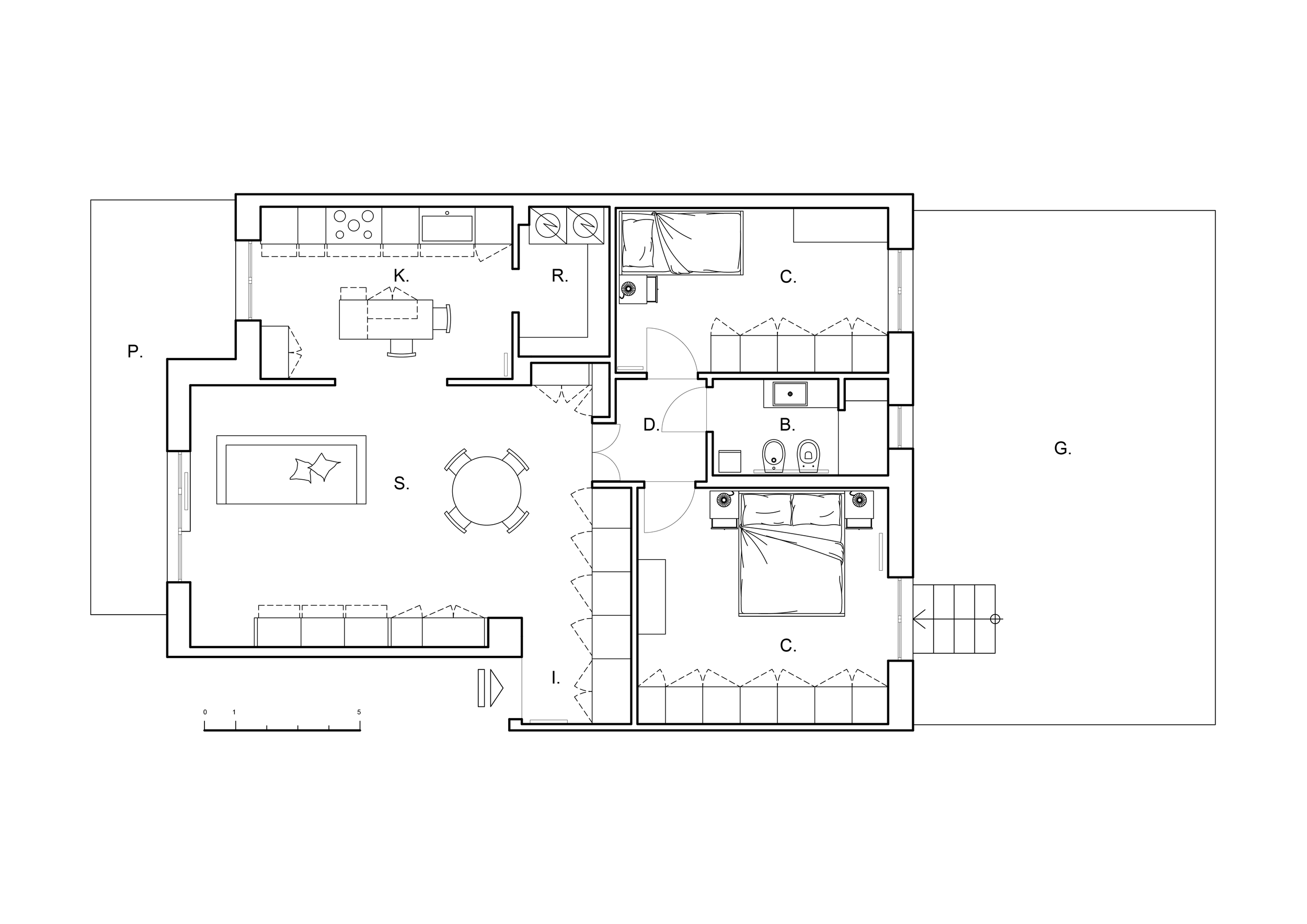
Appartamento al primo piano di un condominio anni ’70 sulle alture di Genova, con scorcio sul mare. L’obbiettivo è quello di rinnovare un’abitazione dalla forte componente affettiva, riorganizzando gli spazi per riflettere un nuovo stile di vita. Lasciare andare il passato per accogliere il cambiamento.

RISULTATO
Un equilibrio tra razionalità e calore domestico. Il progetto dimostra come piccoli gesti progettuali possano generare un grande impatto.

INTERVENTO
Gli spazi sono stati ripensati in chiave funzionale: eliminato il corridoio, ampliata la zona giorno, e creata una connessione diretta tra soggiorno e cucina. L’ex ripostiglio è stato trasformato in lavanderia/dispensa. La zona notte è rimasta separata per garantire privacy e comfort. Il progetto d’arredo, concepito in continuità con quello architettonico, completa l’intervento con coerenza formale e materica.

DETTAGLI

  • Arredamento e porte custom: falegnameria Hromin

  • Porta scorrevole: Rimadesio

  • Sospensioni: Rituals, Foscarini

  • Sgabelli: Fratelli Levaggi

  • Cucina: Arrex

  • Bagno: rivestimento Panaria, rubinetteria Treemme, sanitari Tesi

  • Tavolo, sedie e complementi: arredi d’epoca

PH. Michele Martini Donati

PRIMA

DOPO