Design d'Interni Albaro Monolocale

Il Monolocale di N.

Progetto architettonico, direzione lavori, arredo su misura e definizione palette colori

Bogliasco Centro (GE), 2024, 30 mq

OBIETTIVO
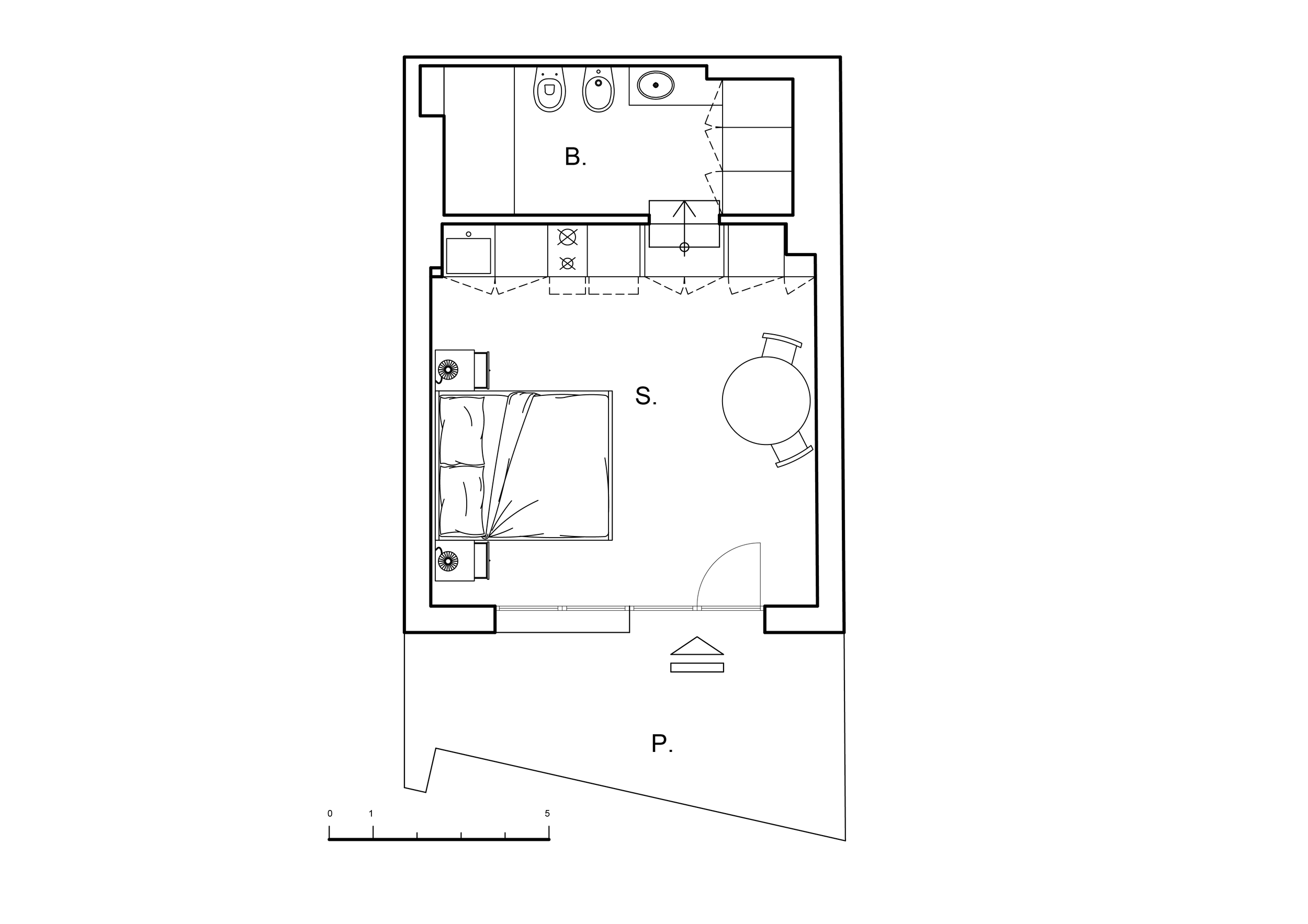
Trasformare un semplice monolocale al primo piano di un condominio anni ’60 nel cuore di Bogliasco in una piccola suite dal carattere deciso. Ottimizzare ogni metro quadro per integrare cucina di design, bagno spazioso e letto confortevole.

INTERVENTO
Minimi interventi edilizi, massima resa funzionale. Il bagno, completo di ogni comfort, è stato progettato per sfruttare lo spazio al meglio. L’arredo su misura ha permesso di valorizzare ogni angolo con precisione sartoriale.

RISULTATO
Un progetto in cui il dettaglio fa la differenza: porta a scomparsa, lavabo scultoreo e colorato, profili neri come tratti d’inchiostro, piastre a induzione di ultima generazione. Tutto il necessario per un soggiorno di lusso a pochi passi dal mare.

DETTAGLI

  • Cucina e armadiatura: Arrex

  • Piastre a induzione: Fabita

  • Bagno: rivestimento ABK, lavabo Domiziani, sanitari GSI

  • Letto, tavolo e sedie: IKEA

PRIMA

DOPO